


钢壳中频炉是一种把三相工频电流变换成单相中频电流的变频装置,通过电磁场感应使金属产生涡流损耗,而达到发热熔化的目的。多用于用于钢铁、铜、铝等黑色或有色金属及合金材料的熔炼、升温、保温。特别适合于金属铸造、炼钢行业,已成为这些行业的标配加热设备。下面,海山机电小编来介绍钢壳中频炉。
一、钢壳中频炉技术参数:
额定容量 t | 额定功率 KW | 中频频率 Hz | 熔炼铸钢1600℃ | 熔炼铸铁1450℃ | ||
熔化率 t/h | 单位电耗kw.h/t | 熔化率 t/h | 单位电耗kw.h/t | |||
1 | 500 | 1000 500 | 0.76 | 789 | 0.79 | 750 |
800 | 1.20 | 640 | 1.23 | 610 | ||
1.5 | 750 | 1000 500 | 1.10 | 650 | 1.13 | 620 |
1000 | 1.50 | 600 | 1.60 | 575 | ||
2 | 1000 | 500 | 1.40 | 610 | 1.50 | 585 |
1200 | 1.70 | 570 | 1.80 | 560 | ||
3 | 1500 | 500 | 2.40 | 640 | 2.50 | 610 |
1800 | 2.80 | 610 | 2.90 | 590 | ||
5 | 2000 | 500 | 3.00 | 585 | 3.10 | 560 |
3000 | 4.50 | 560 | 4.70 | 54 | ||
7 | 3500 | 500 | 5.30 | 550 | 5.50 | 530 |
4000 | 6.00 | 540 | 6.30 | 520 | ||
10 | 5000 | 300 | 7.50 | 550 | 7.80 | 530 |
6000 | 9.00 | 520 | 9.40 | 510 | ||
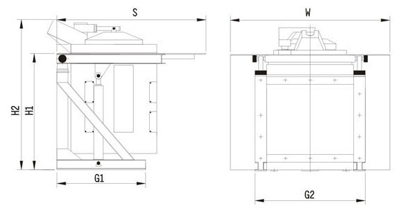
二、钢壳中频炉外形尺寸:
额定容量 t | 外形尺寸 mm | 重量 | ||||||
铁 | 铜 | 铝 | H1 | H2 | G1 | G2 | WxS | |
1 | 1 | 0.4 | 1700 | 2100 | 1350 | 1800 | 2200x2200 | 5 |
1.5 | 1.5 | 0.6 | 1800 | 2300 | 1400 | 2000 | 2400x2600 | 6 |
2 | 2 | 0.8 | 1900 | 2500 | 1550 | 2150 | 2500x2700 | 7 |
3 | 3 | 1 | 2100 | 2650 | 1600 | 2400 | 3000x3000 | 9 |
4 | 4 | 1.2 | 2250 | 2800 | 1700 | 2500 | 3100x3100 | 12 |
5 | 5 | 1.6 | 2350 | 3000 | 1750 | 2700 | 3200x3200 | 13 |
7 | 7 | 2 | 2550 | 3200 | 2100 | 2900 | 3400x3400 | 14 |
10 | 10 | 3 | 3200 | 3800 | 2300 | 3200 | 3900x3900 | 18 |
12 | 12 | 4 | 3200 | 3800 | 2400 | 3300 | 4100x4100 | 20 |
15 | 15 | 5 | 3550 | 4350 | 2550 | 3700 | 4300x4300 | 26 |
20 | 20 | 3950 | 4700 | 2800 | 3900 | 4400x4700 | 30 | |

三、钢壳中频炉安装基础图:

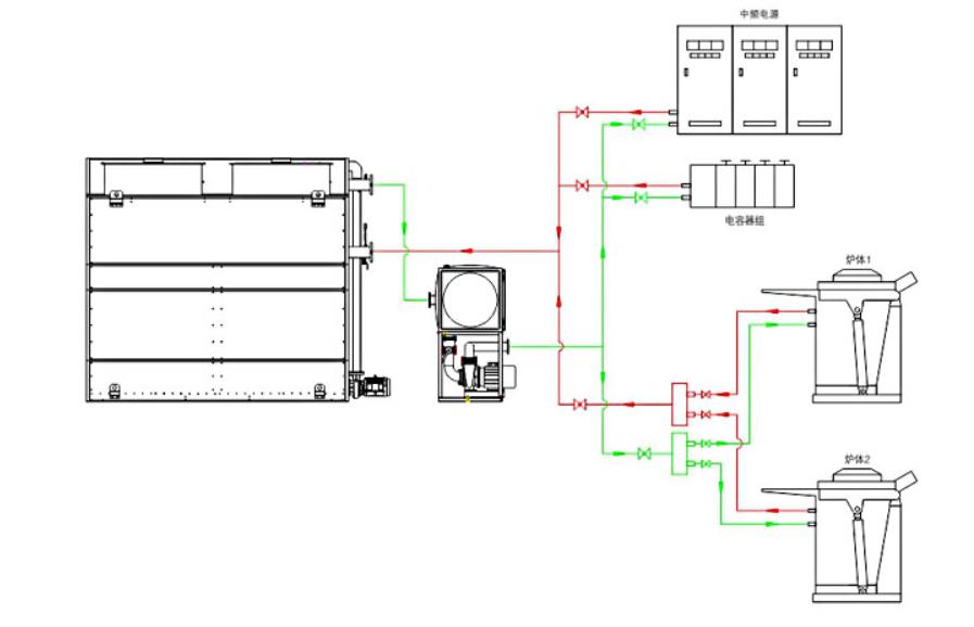
四、钢壳中频炉冷却示意图:

如有钢壳中频炉需求,请致电13891905066 李经理;更多钢壳中频炉资讯,请关注陕西海山机电有限公司网站http://www.sxhszpl.com
029-84367828